SvD_ped_tennisclub Herselt 44_medres_.jpg_compressed
SvD_ped_tennisclub Herselt 53_medres_.jpg_compressed
SvD_ped_tennisclub Herselt 21_medres_.jpg_compressed
18024 BA AC28 grondplan
SvD_ped_tennisclub Herselt 31_medres_.jpg_compressed
SvD_ped_tennisclub Herselt 28_medres_.jpg_compressed
SvD_ped_tennisclub Herselt 6_medres_.jpg_compressed

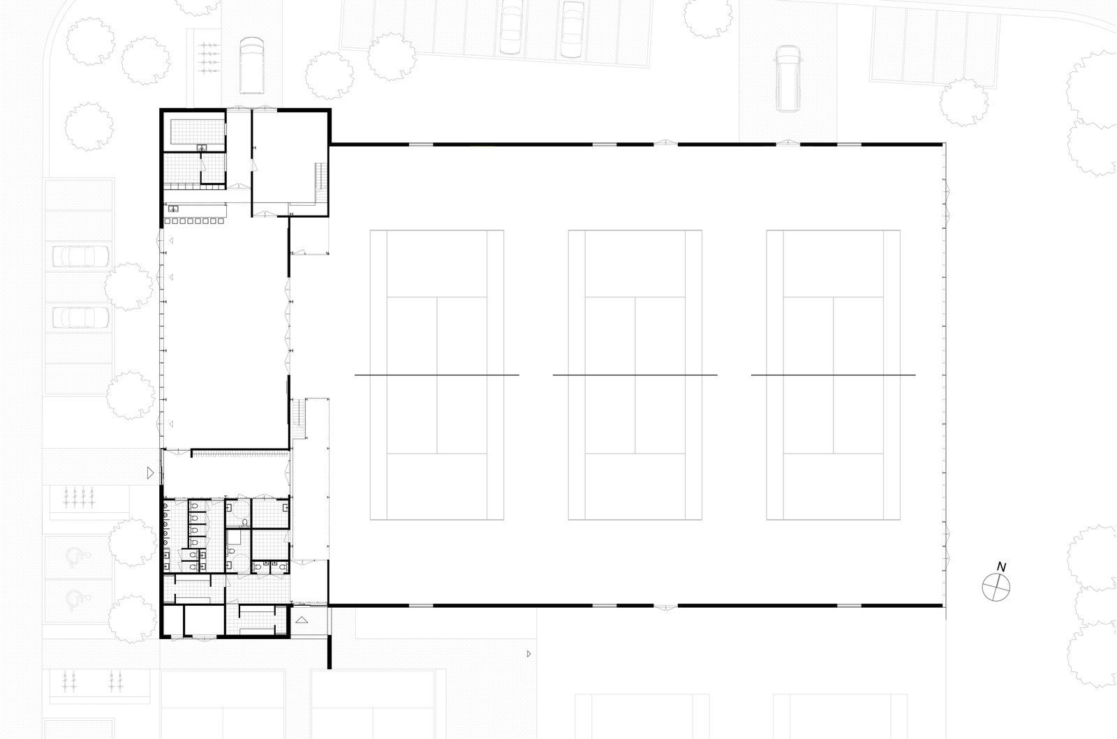
Tennishal Herselt

Op de Asbroek-site in Herselt realiseerde PED architecten een nieuwe tennishal, gecombineerd met een multifunctionele sportzaal. Het gebouw is ontworpen om autonoom te functioneren en omvat diverse ondersteunende ruimtes zoals een bijkeuken, koelcel, kleedkamers en sanitair. De oostelijke gevel van de tennishal is volledig uitgevoerd in glas, waardoor de hal baadt in natuurlijk daglicht. Deze transparantie versterkt de openheid van het gebouw en creƫert een visuele verbinding met de omliggende omgeving. Naast de indoorfaciliteiten voorziet het ontwerp ook in twee padelterreinen en twee outdoor tennisterreinen. De aanleg van nieuwe parkeerplaatsen en fietsenstallingen maakt integraal deel uit van het project, waardoor de site een volwaardige en toegankelijke sporthub wordt voor de regio.

Projectnummer
18024
Locatie
Herselt
Fase
A asbuilt